BUILT PROJECT:
HOUSE IN BRYLOWKA

Project Expected Start: 2026

BRYLOWKA, NOWE BYSTRE, POLAND - “Beyond” is a conceptual project that demonstrates the importance of language, words, and interpretations throughout the design process.


“Beyond” describes a point in space in relation to another that is not directly accessible. The notion of “beyond” implies a place of greater importance, which may contain richer elements that are not easily attained. The building proposal for an auto repair shop examines the preposition “beyond” through 3 approaches.


Firstly,
two cone-like volumes produce a forced perspective, manipulating the perception of space to appear further. Tighter niches for an office and entry open toward large, open areas for the garage and car lifts.

Secondly, the profile of the garage roof curves upward and reads as a receding surface from the front elevation. This profile produces a soft, indistinguishable edge whose end disappears out of sight.

Thirdly, containers that house the waiting room and restrooms give the illusion of levitation through materiality. Translucent partitions compartmentalize the back of house and double through the reflective interior. As they slide and slip past the exterior shell, the hovering containers allow customers and employees to be viewed through partial glimpses.

FrontEntrance_MainRender_Brylowka

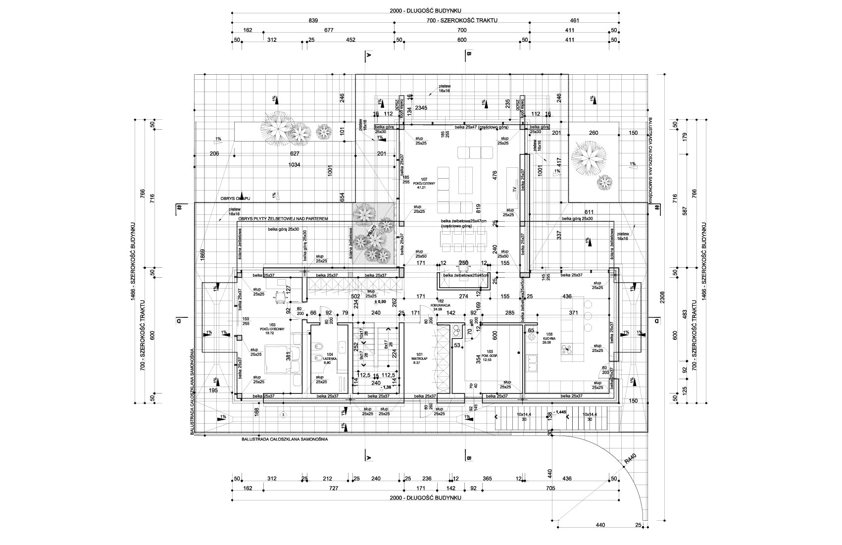
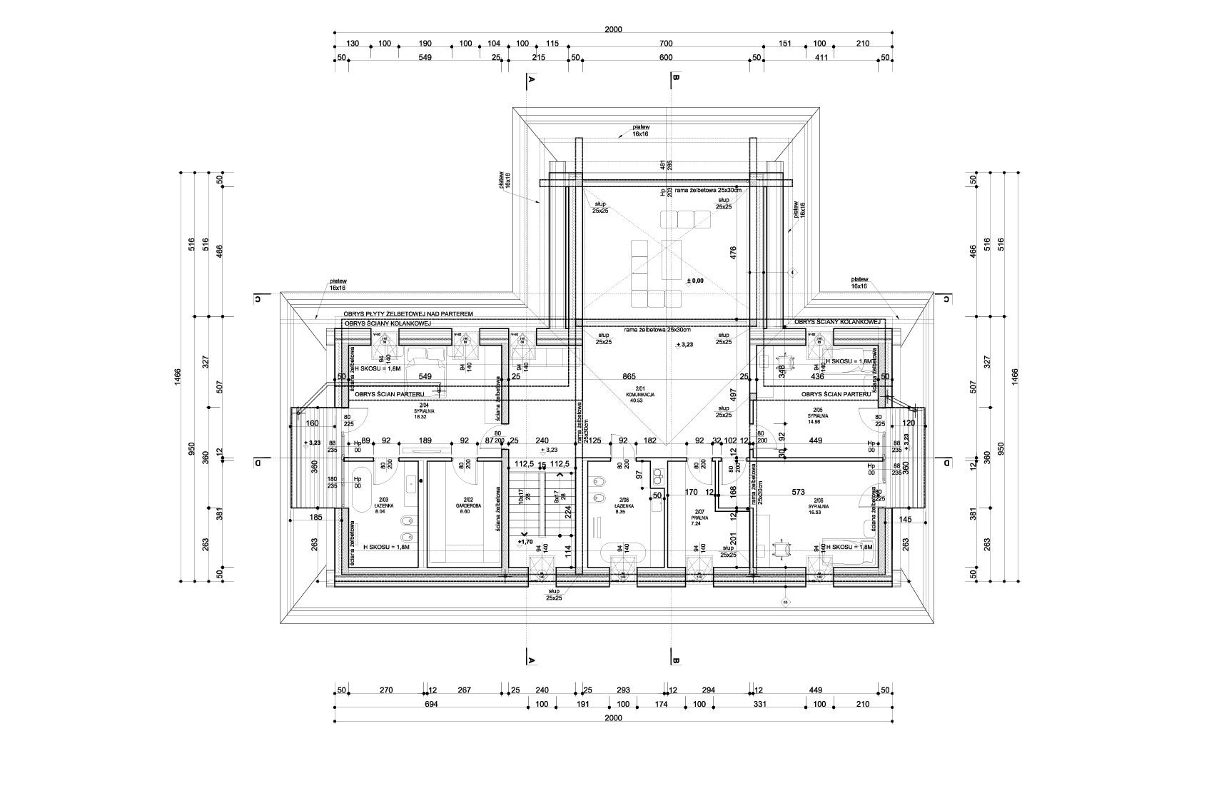
FLOORPLANS

BASEMENT FLOORPLAN

FIRST FLOORPLAN

SECOND FLOORPLAN
THIRD FLOORPLAN

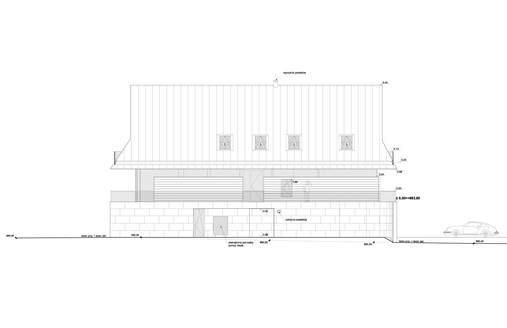
ELEVATIONS

FRONT ELEVATION
SIDE ELEVATION
REAR ELEVATION
SIDE ELEVATION

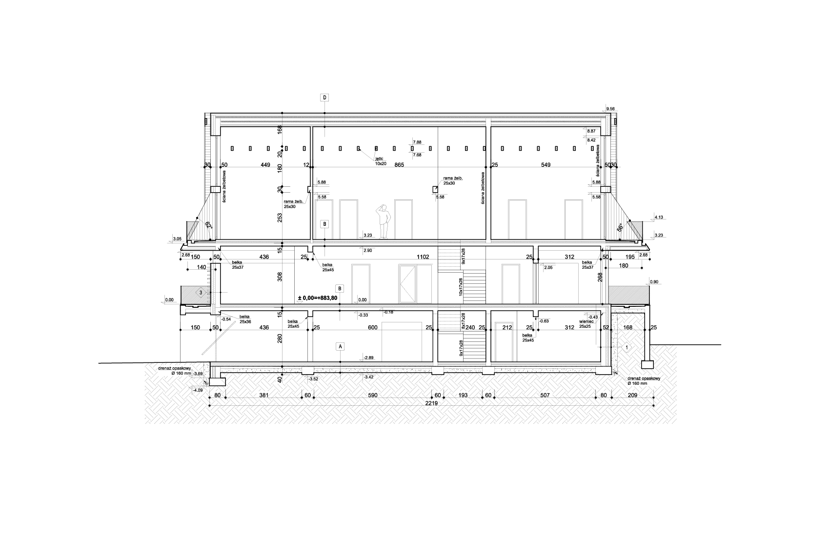
SECTIONS

SECTION A
SECTION B
SECTION C
SECTION D

RENDERS

MAP

FACTS


Completed Fall 2021 Semester, under the guidance of Abigail Chang

Awarded at UIC Year End Show ¨Outstanding Undergraduate 4th year Project¨ 2022

OTHER PROJECTS

CONCEPTUAL PROJECT:
BEYOND: AUTO REPAIR SHOP
Conceptual Project:
Gable Roof House