CONCEPTUAL PROJECT:
"BEYOND" AUTO REPAIR SHOP

Project: Fall 2021

UIC, Chicago, USA - “Beyond” is a conceptual project that demonstrates the importance of language, words, and interpretations throughout the design process.


“Beyond” describes a point in space in relation to another that is not directly accessible. The notion of “beyond” implies a place of greater importance, which may contain richer elements that are not easily attained. The building proposal for an auto repair shop examines the preposition “beyond” through 3 approaches.


Firstly,
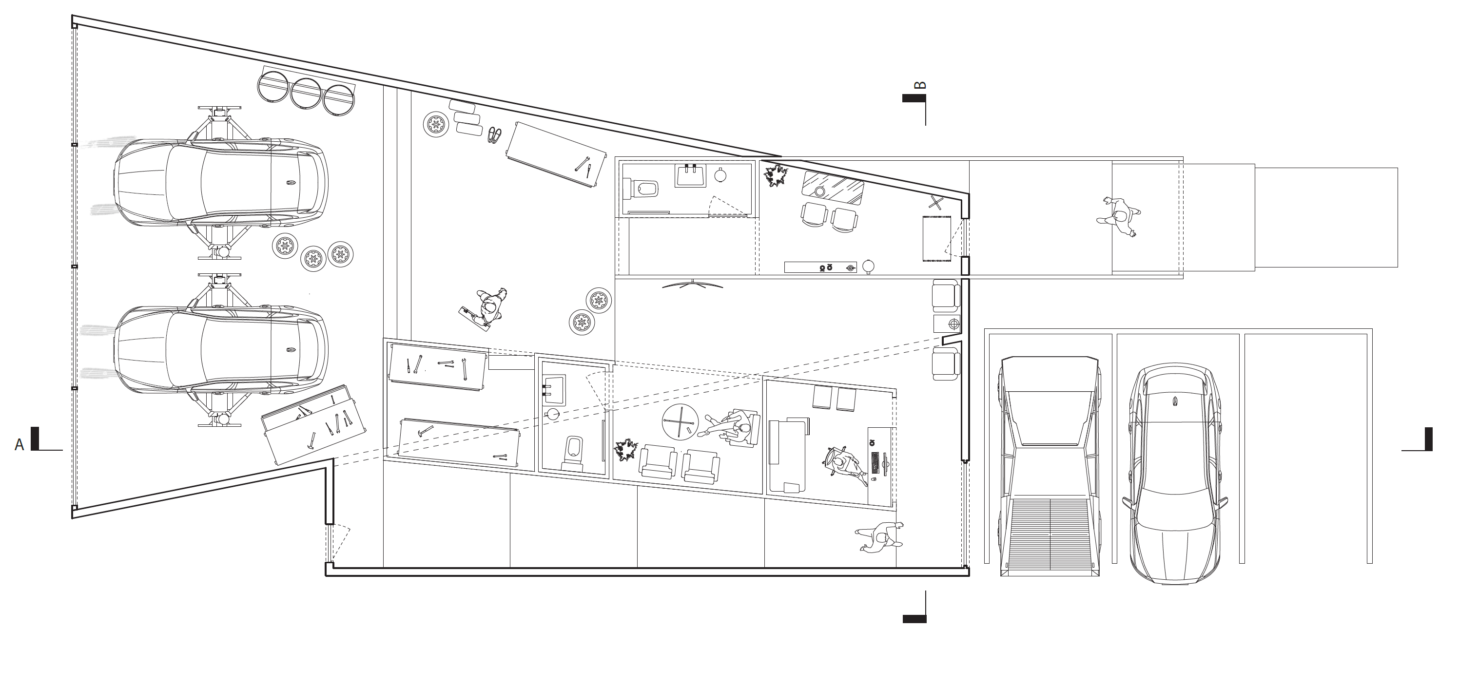
two cone-like volumes produce a forced perspective, manipulating the perception of space to appear further. Tighter niches for an office and entry open toward large, open areas for the garage and car lifts.

Secondly, the profile of the garage roof curves upward and reads as a receding surface from the front elevation. This profile produces a soft, indistinguishable edge whose end disappears out of sight.

Thirdly, containers that house the waiting room and restrooms give the illusion of levitation through materiality. Translucent partitions compartmentalize the back of house and double through the reflective interior. As they slide and slip past the exterior shell, the hovering containers allow customers and employees to be viewed through partial glimpses.

AutoRepairShop_MainImage_"Beyond"
AutoRepairShop_FrontModel_"Beyond"
AutoRepairShop_BackModel_"Beyond"
AutoRepairShop_Section_"Beyond"

STUDY MODELS

DRAWINGS

AutoRepairShop_FloorPlan_"Beyond"

AutoRepairShop_Section_"Beyond"

RELATION TO LANGUAGE

JORGE LUIS BORGES (1977)



The English language has one of the largest vocabularies in the world. As much as 800,000 words exist in English, whereas other languages like Spanish only contain around 125,000.

By extrapolating the preposition "beyond" framed in the English language, the design of the auto repair shop is able to make interpretations that it wouldn't be able to in any other language.

In Spanish, the same translates to "más allá de", in Polish to "poza", although the two technically mean the same thing "further than here", the interpretation in English carries much more mysticism, context, and opportunity for creativity.

Approaching design through the broad lense of knowing more languages and having a deep understanding of other parts of the world is much more fruitful than not.

FACTS


Completed Fall 2021 Semester, under the guidance of Abigail Chang

Awarded at UIC Year End Show ¨Outstanding Undergraduate 4th year Project¨ 2022

Physical model constructed with routed MDF board

OTHER PROJECTS

BUILT PROJECT:
HOUSE NEAR ZAKOPANE
CONCEPTUAL PROJECT:
ONE ROOM